Главная |О студии| Портфолио | Услуги и цены | Контакты | Проект по Васту | Архитектурный проект | Дизайн фасадов | Блог

Главная страница  >  Типовые проекты   >  Летний душ с раздевалкой Д-22-12

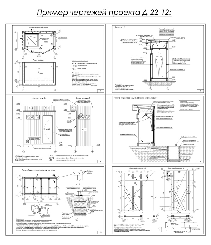
Проект летнего душа с раздевалкой Д-22-12.

Проект дачного душа

дачный летнего душа

современный летний душ

каркасный летний душ

летний душ чертежи

Проект современного летнего душа в стиле скандинавский минимализм. Спроектирован по каркасной технологии. Габаритные размеры снаружи по каркасу 2,25 х 1,22 м. Внутри две зоны: раздевалка и душ (с душевым поддоном). Толщина каркаса стен - 100 мм. Без утепления. Фундамент - столбчатый из бетонных блоков. Кровля - односкатная малоуклонная. Конструкция предполагает использование пластикового бака для душа на 150 литров с подогревом. Бак располагается в чердачном пространстве под кровлей. Для того, чтобы бак нагревался от солнца, покрытие кровли предусмотрено из прозрачного профилированного монолитного поликарбоната. Благодаря прозрачной кровле также создаётся парниковый эффект в чердачном пространстве, что нагревает бак с водой ещё больше.

чертеж летний душ

Архитектурные параметры:

● Габаритные размеры (по каркасу снаружи) - 2,2 х 1,2 м;

● Высота от земли - 2,95 м;

● Высота потолка (чистовая) - 2,13 м;

● Фундамент столбчатый (из бетонных блоков);

● Каркас стен из доски 50х100;

● Лаги пола из доски 50х100 мм;

● Стропила из доски 50х100 мм;

● Утепление: нет;

● Отделка снаружи: имитация бруса, проф.лист;

● Отделка внутри: вагонка, панели ПВХ (в зоне душа);

● Кровля: односкатная малоуклонная;

Покрытие кровли - профилированный монолитный поликарбонат;

Проект представляет из себя pdf-альбом (27 листов формата А4) с подробными архитектурными и конструктивными чертежами, спецификацией строительных материалов и крепёжных элементов, а также оптимизацией раскроя пиломатериалов.

состав проекта душа

чертежи летнего душа

Купить проект летнего душа Д-22-12

Стоимость: 1100 рублей

После нажатия на кнопку "Купить", вы будете перенаправлены на сайт Wildberries Цифровой. После оплаты товара на сайте Wildberries Цифровой в разделе "Покупки" можно будет скачать проект.

________________________________________________________________________

Если Вы хотите заказать индивидуальный проект или задать вопросы, свяжитесь со мной по телефону, телеграму или почте:

+7 977 268-04-53

novikov-architect@mail.ru

проект дома по васту

Смотреть другие типовые проекты в каталоге:

   

Основные страницы сайта:

Главная страница

О студии

Портфолио

Услуги и цены

Блог архитектора

Контактная информация

Наш новый сайт

         

Архитектурное проектирование:

Эскизный проект дома

Архитектурный проект дома

Архитектурно-строительный проект дома

Дизайн фасада дома

Консультация архитектора онлайн

Каталог готовых типовых проектов домов

Популярные страницы сайта:

Необходимая толщина стен дома для Московской области

Стили современной архитектуры

Проект современной каркасной бани

Архитекторы 20 века

Васту Шастра

Исторические стили архитектуры

Проект Дом-маяк